Messages : 291
Sujets : 16
Inscription : May 2021
Bonjour,
Mon maison en cours de construction sera de la norme RT2012. Pour les non français, c'est l'avant dernière norme en matière de bâtiment basse consommation. La dernière, étant la RE2020, mais j'ai eu mon permis de construire avant la mis en application de cette dernière.
Ces normes permettent d'obtenir une maison assez étanche à l'air.
Pour une hotte à évacuation, l'air expulsé a besoin d'être remplacé ( admission d'air). La solution la plus simple étant d'ouvrir la fenêtre.
Sans admission d'air, on dépressurise la maison.
Alors, une solution serait de ne mettre en marche la hotte que si la fenêtre est ouverte.
En cherchant sur le net, j'ai trouvé la marque ELICA qui propose une solution : combiner ses hottes sur un "kit windows". En fait ELICA ne propose pas directement ce kit, il faut le prendre chez un fournisseur allemand. Il s'agit du KIT FDS-100 de chez Reichelt electronik
Le KIT est composé de 2 modules : - Un capteur d'ouverture de fenêtre
- Un récepteur connecté la hotte
Les 2 communiquent en sans fil sur le principe de : l a hotte ne se met en marche que si la fenêtre est ouverte.
Problème: - Le capteur d'ouverture de fenêtre n'est pas discret et est sans fil
- Elica c'est bien, mais ... je préfère Novy !
Sinon pour ceux que cela intéresse, les solutions de reichelt fonctionnent sur n'importe quelle hotte, mais ce sera comme un interrupteur (couper l'alimentation).
Moi, ce qui m'intéresse c'est : couper l'aspiration tout sans toucher aux autres fonction de la hotte !
Alors je regarde du côté de Novy, et bingo, la gamme (récente), Purline pro propose un module avec des entrées contact sec ! Top, me direz-vous, mais à 2300€-2400€ cela m'a refroidi.
Mais un peu déterminé, je creuse un peu le sujet et voici ce que j'ai trouvé et que je compte mettre en place chez moi.
Toutes mes fenêtres auront des détecteurs d'ouverture (Reed) reliés au KNX - Je pars sur une hotte Novy avec moteur déporté.
- Un table de cuisson Novy avec commande de hotte intégré (In touch)
- Un moteur déporté est alimenté et commandé par la hotte qui elle même est alimenté depuis le secteur.
On peut ainsi faire joujou avec le moteur tout en gardant les autres fonctionnalité de la hotte (récepteur sans fil, lumières, etc).
En cherchant un peu, je vois que les moteur Novy ont 6 fils :
- Rouge : vitesse 1
- Blanc : vitesse 2
- Brun : vitesse 3
- Noir : vitesse 4
- Bleu : commun (neutre)
- Jaune/vert : Terre
Il suffirait ainsi de passer le commun par un TOR KNX et le tour est joué, du moins dans la théorie.
Vu la longueur des câbles chez Novy (5m et 10m), je me dit qu'il faut rester dans ces eaux là. Je vais par précaution tirer un câble KNX prêt du moteur. Comme ça si le faut, j'installerai le module TOR (modèle encastrable) juste à côté.
Scénario d'utilisation.
Je lance hotte
Si 1 ou plusieurs fenêtres de la pièce de vie sont ouvertes => pas de problème, le moteur se lance
Si aucune fenêtre ouverte => la hotte marche, mais pas d'extraction (moteur éteint) et 1 ou 2 led clignotent pour alerter l'utilisateur de la hotte.
Vu que j'ai prévu 2 enceintes multi room dans la partie cuisine, à terme j'émettrai une annonce pour demander d'ouvrir la fenêtre
Qu'en pensez-vous ?
Merci.
Messages : 190
Sujets : 7
Inscription : Oct 2021
Question étanchéité a l'air de la maison, tout dépend de la solution mis en œuvre par ton constructeur / M.O / ...
Tu est sur une étanchéité avec membrane pare vapeur (ex Vario xtra) ? Où sur un étanchéité directement avec le kraft papier de l'isolation ?
Question ventilation, tu est en simple flux ou en double flux ?
Messages : 291
Sujets : 16
Inscription : May 2021
(17/02/2023, 07:10:34)SpaRtzZii a écrit : Question étanchéité a l'air de la maison, tout dépend de la solution mis en œuvre par ton constructeur / M.O / ...
Tu est sur une étanchéité avec membrane pare vapeur (ex Vario xtra) ? Où sur un étanchéité directement avec le kraft papier de l'isolation ?
Question ventilation, tu est en simple flux ou en double flux ?
Bonjour,
L'étanchéité, c'est de laine minérale GR32 avec un surfaçage Kraft.
Pour la ventilation je serai sur un simple flux. Ce sera la Renson Healthbox 3.0 Hygro+
Merci.
Messages : 190
Sujets : 7
Inscription : Oct 2021
18/02/2023, 07:28:31
(Modification du message : 18/02/2023, 07:29:54 par SpaRtzZii.)
Salut domotique.
Sans vouloir te froisser, mais sache que l'étanchéité a l'air ne ce fais plus avec le papier kraft des isolants. D'ailleurs il n'était pas reconnu comme pare vapeur dans les constructions au dessus de 800m d'altitude dans la rt2012. Et dans la re2020 il n'est tout simplement reconnu comme telle.
Pour en revenir à ton raisonnement, tu n'auras pas de réelle problème de dépression car tu est sur un simple flux. Ton air propre est directement puisé par les aérations sur fenêtre. Donc si une éléments viens généré un extraction supplémentaire a la VMC SF, l'ensemble des aération sur tes fenêtres arriveront à compenser ce débit (sauf cas particulier comme les cheminée et poêle).
Le problématiques et surtout du avec des VMC DF ou l'air injecté et entièrement contrôlé par celle-ci. Donc en mettant un système comme le tiens, elle ne peuvent pas compléter le débit extrait par la hotte.
Avis personnel car j'ai moi même regardé ces systèmes avant de les laisser tomber pour diverses problèmatique.
A la place de réaliser toute une automatisation complexe lié au fenêtres, je m'assurer simplement d'avoir un registre motorisé (complément étanche) sur la canalisation d'extraction de la hotte pour éviter que quand elle ne soit pas en marche, celles-ci ne puisse pas de l'air extérieur inutilement a cause de ta VMC SF.
Et a l'inverse, dans assurer une automatisation pour ouvrir ce registre quand tu utilise ta hotte.
Messages : 12
Sujets : 2
Inscription : Feb 2023
Hello,
Tout à fait d'accord avec SpaRtzZii au niveau de la dépression, pas de soucis vus que tu es en simple flux, en fait ça va même améliorer l’efficacité de la hotte, l'air neuf sera aspirée de toutes les pièces environnantes donc ces pièces ne pourront pas recevoir d'air vicié, et effectivement l'étanchéité au Kraft n'en ai pas une.
Messages : 12
Sujets : 2
Inscription : Feb 2023
(18/02/2023, 07:28:31)SpaRtzZii a écrit : Salut domotique.
Sans vouloir te froisser, mais sache que l'étanchéité a l'air ne ce fais plus avec le papier kraft des isolants. D'ailleurs il n'était pas reconnu comme pare vapeur dans les constructions au dessus de 800m d'altitude dans la rt2012. Et dans la re2020 il n'est tout simplement reconnu comme telle.
Pour en revenir à ton raisonnement, tu n'auras pas de réelle problème de dépression car tu est sur un simple flux. Ton air propre est directement puisé par les aérations sur fenêtre. Donc si une éléments viens généré un extraction supplémentaire a la VMC SF, l'ensemble des aération sur tes fenêtres arriveront à compenser ce débit (sauf cas particulier comme les cheminée et poêle).
Le problématiques et surtout du avec des VMC DF ou l'air injecté et entièrement contrôlé par celle-ci. Donc en mettant un système comme le tiens, elle ne peuvent pas compléter le débit extrait par la hotte.
Avis personnel car j'ai moi même regardé ces systèmes avant de les laisser tomber pour diverses problèmatique.
A la place de réaliser toute une automatisation complexe lié au fenêtres, je m'assurer simplement d'avoir un registre motorisé (complément étanche) sur la canalisation d'extraction de la hotte pour éviter que quand elle ne soit pas en marche, celles-ci ne puisse pas de l'air extérieur inutilement a cause de ta VMC SF.
Et a l'inverse, dans assurer une automatisation pour ouvrir ce registre quand tu utilise ta hotte.
Salut !
Tu es en double flux SpaRtzZii ?
Je le serrais et j'ai pensé au registre comme toi, mais ce sujet me fait réfléchir à mon apport d'air comme je suis en double flux, je pense que que la hotte pendra le dessus de la vmc, le débit d'air augmentera en conséquence... peut être.
Messages : 3,632
Sujets : 46
Inscription : Mar 2013
(15/02/2023, 22:08:22)demotica a écrit : Toutes mes fenêtres auront des détecteurs d'ouverture (Reed) reliés au KNX- Je pars sur une hotte Novy avec moteur déporté.
- Un table de cuisson Novy avec commande de hotte intégré (In touch)
- Un moteur déporté est alimenté et commandé par la hotte qui elle même est alimenté depuis le secteur.
Scénario d'utilisation.
Je lance hotte
Si 1 ou plusieurs fenêtres de la pièce de vie sont ouvertes => pas de problème, le moteur se lance
Si aucune fenêtre ouverte => la hotte marche, mais pas d'extraction (moteur éteint) et 1 ou 2 led clignotent pour alerter l'utilisateur de la hotte.
Vu que j'ai prévu 2 enceintes multi room dans la partie cuisine, à terme j'émettrai une annonce pour demander d'ouvrir la fenêtre 
Bonjour
J'ai également une Novy pure'line 850 avec moteurs déportés et une plaque à induction Novy (j'ai intégré la commande de l'éclairage au KNX) ; ma maison étant également RT2012 j'ai opté pour le modèle à recyclage mais ta solution est possible car, pour la version recyclage, le bruit est acceptable en vitesse 1 (celle utilisée le plus couramment) et tolérable en vitesse 2 !
Messages : 190
Sujets : 7
Inscription : Oct 2021
Effectivement, je suis en double flux.
D'où le fait que j'ai abandonné ce système pour des hottes conventionnelle. Ça fais créer un usine à gaz juste pour la hotte. Au final, autant piloter la VMC grâce à la domotique et la passer en surventillation pour supprimer les résidus d'odeur de cuisine et principalement l'humidité génère par la cuisine.
Messages : 3,632
Sujets : 46
Inscription : Mar 2013
@SpartzZii
En aucun cas la VMC n'est prévue pour ce type d'utilisation et dans une maison ouverte il est impossible se passer d'une hotte d'extraction digne de ce nom ...sauf si on est adepte de la cuisson au micro-ondes à 100 % !?
Messages : 291
Sujets : 16
Inscription : May 2021
(18/02/2023, 07:28:31)SpaRtzZii a écrit : Salut domotique.
Sans vouloir te froisser, mais sache que l'étanchéité a l'air ne ce fais plus avec le papier kraft des isolants. D'ailleurs il n'était pas reconnu comme pare vapeur dans les constructions au dessus de 800m d'altitude dans la rt2012. Et dans la re2020 il n'est tout simplement reconnu comme telle.
Bonjour SpaRtzZii,
Tu ne me froisse pas du tout !
En fait je ne cherche pas à construire une maison étanche à l'air. Je construis juste une maison aux normes en vigueurs et il se trouve que c'est RT2012.
Et j'ai lu à plusieurs reprise que les maisons RT0212 était suffisamment étanche pour être incompatible avec une hotte à évacuation.
Partant de cela, il y'a 2 solution :
1 - Partir sur une hotte à récyclage
2 - ou une hotte à évacuation, en s'assurant qu'à chaque usage il y'a une admission d'air suffisante. En général, les gens ouvrent la fenêtre de la cuisine
Moi je préfère une hotte à évacuation (RT2012 ou pas), avec un moteur déporté dans le cellier.
Référence de la hotte : Novy Purline 6840
Ma table de cuisson, une Novy 1726 capable de commander la hotte.
Sachant que toutes mes ouvertures seront de toute façon équipées de capteurs d'ouverture, je ne monte aucunement un système complexe pour uniquement la hotte. J'exploite ce qui sera installé dans tous les cas.
Donc partant ce qui sera déjà installé, je souhaite faire communiquer tout ce monde ... c'est ça la domotique, non ?
La fenêtre (équipé de son capteur d'ouverture) dit à la hotte : Je suis (ou pas) ouverte -> lance (ou pas) l'extraction
La une loupiotte qui clignotte (ou pas) pour dire à l'humain : ouvre (ou pas) la fenêtre.
D'ailleurs ce sera une cuisine ouverte sur une pièce de vie de 60m2 avec 3 baies vitrées et une grande fenêtre. Donc le check sera sur l'ensemble de ces ouvertures.
Pour la VMC, comme Yves l'a dit, ce n'est pas du tout fait pour ça.
Quant aux admissions d'air par les fentes d'aération des fenêtres, je ne crois pas qu'elles soient suffisantes pour compenser le débit d'une hotte à évacuation.
Messages : 3,632
Sujets : 46
Inscription : Mar 2013
(18/02/2023, 12:48:44)demotica a écrit : Quant aux admissions d'air par les fentes d'aération des fenêtres, je ne crois pas qu'elles soient suffisantes pour compenser le débit d'une hotte à évacuation.
C'est certain, le débit de ma hotte varie entre 620 et 1700m3/h ; une fois la maison en dépression, la hotte n'est plus efficace.
En solution alternative, il me semble qu'il existe des bouches d'insufflation qui s'ouvre uniquement au-delà d'une certaine valeur de dépression.
Messages : 291
Sujets : 16
Inscription : May 2021
(18/02/2023, 13:28:45)Ives a écrit : En solution alternative, il me semble qu'il existe des bouches d'insufflation qui s'ouvre uniquement au-delà d'une certaine valeur de dépression.
Un des meilleurs systèmes de genre que j'avais envisagé c'est le le BIXO Balance de Naber.
Cette solution est composée d'un système d'admission d'air qui fonctionne en tandem avec le système d'évacuation.
Je lui trouve deux inconvénients :- Il est assez onéreux (2000€).
- Les 2 modules fonctionnes en sans-fil ... pour ce genre de choses, je préfère du filaire.
A part ces 2 points bloquants pour moi, c'est clairement le meilleur sytème que j'ai vu !
Messages : 190
Sujets : 7
Inscription : Oct 2021
18/02/2023, 20:40:31
(Modification du message : 18/02/2023, 20:48:00 par SpaRtzZii.)
Je corrige car vous m'avez mal compris.
Une hotte a recyclage élimine 95% des odeurs mais pas l'humidité lié à la cuisson.
J'utilise donc la VMC DF pour éliminer l'humidité superflu et par la même occasion, les éventuelles odeurs résiduelle.
Effectivement vos systèmes de hotte sont peux être plus performants pour éliminer les odeurs de cuisson. Mais qu'en est t'il du bénéfice d'une maison RT2012 et plus, si tu dois ouvrir la fenêtre tous les jours pour faire a manger ?
Après bien sûr c'est le principe d'une domotique, mais cela fais créer par mal de règles pour une simple utilisation d'une hotte. Ce n'est que mon point de vu.
Pour revenir au principal sujet donc je tes répondu qui était l'étanchéité de la maison.
Je connais une chier de maison RT2012 qui sont étanche selon la norme (en même temps ce n'est pas très compliqué), mais dont l'utilisation d'une hotte ne génère pas de dépression. Pire encore des poêles bois bûche dans ces mêmes maisons qui n'ont pas de prise d'air extérieur et ne génère aucun soucis de dépression.
Édit : Je précise avant que mon message ne soit pris de travers, je ne valide pas ces malfaçons pour les poêle bois constater chez des amis, client, ... Ce sont juste des constatations.
Je te partage mon points de vu pour t'éviter de perdre du temps.
Tu peux simplement prévoir selon ton souhait le conduit d'extraction. Une fois en condition réelle, tu pourras juger de l'utiliter réelle de tout ça ... Et programmer ou non tout cela.
Messages : 291
Sujets : 16
Inscription : May 2021
(18/02/2023, 20:40:31)SpaRtzZii a écrit : Une hotte a recyclage élimine 95% des odeurs mais pas l'humidité lié à la cuisson. Humm, je pense que ça dépend de ce qu'on cuisine. J'ai actuellement une hotte a recyclage, et je n'en veux plus.
Côté élimination des odeurs, je n'en veux plus, et pour un peu plus d'efficacité, il faut monter le son, non merci !
Donc domotique ou pas, j'avais prévu une hotte à extraction et si possible à moteur déporté pour avoir du silence !
(18/02/2023, 20:40:31)SpaRtzZii a écrit : Effectivement vos systèmes de hotte sont peux être plus performants pour éliminer les odeurs de cuisson. Mais qu'en est t'il du bénéfice d'une maison RT2012 et plus, si tu dois ouvrir la fenêtre tous les jours pour faire a manger ?
Une ouverture le temps d'une cuisson et pas tous les jours, ça peut aller je pense !
(18/02/2023, 20:40:31)SpaRtzZii a écrit : Pour revenir au principal sujet donc je tes répondu qui était l'étanchéité de la maison.
Je connais une chier de maison RT2012 qui sont étanche selon la norme (en même temps ce n'est pas très compliqué), mais dont l'utilisation d'une hotte ne génère pas de dépression ...
Effectivement, c'est bon à savoir que cette histoire de dépression n'est pas toujours une réalité en RT2012.
(18/02/2023, 20:40:31)SpaRtzZii a écrit : Je te partage mon points de vu pour t'éviter de perdre du temps.
Tu peux simplement prévoir selon ton souhait le conduit d'extraction. Une fois en condition réelle, tu pourras juger de l'utiliter réelle de tout ça ... Et programmer ou non tout cela.
Trop tard, ma hotte a extraction est déjà achetée ... le mode recyclage est en option payante ... et le recyclage ne m'a jamais convaincu.
Messages : 291
Sujets : 16
Inscription : May 2021
21/02/2023, 12:03:22
(Modification du message : 21/02/2023, 12:04:54 par demotica.)
Bonjour,
En parcourant la documentation de la hotte, j'ai découvert que cette fonctionnalité est nativement implémentée dans la hotte que j'ai : Novy 6840. Mais la fonctionnalité n'est pas bien documenté, ni mis en avant comme sur la gamme pro.
En effet quelques part dans la doc, il est marqué : Cette hotte d’aspiration est équipée d’un raccord pour un interrupteur de contact de fenêtre, sans plus.
Pour ce faire, il faut le kit de câble 990033. Problème, ce câble n'est pas référencé comme accessoire possible de la hotte, et n'existe même pas sur le site de Novy.
En fouillant un peu sur le web, je le trouve sur des sites allemands, à des prix qui vont de 76€ à 150€ !
En regardant de près, ça ressemble à un simple câble avec 2 fils munis de cosses faston isolées d'un côté et d'un domino de l'autre.
Pour en savoir plus, je contacte Novy qui me propose ce câble à 22€ + 12€ de frais de port.
J'ai une pince à sertir, du câble, des wago. Je vais donc me prendre des cosses faston et le concevoir moi même.
Donc plus besoin de me brancher sur le neutre du moteur comme je l'envisageais, 2 fiches pour cosses faston sont prévus pour !
Quelques choses me dit que Novy ne communique pas beaucoup dessus pour vendre les novy pro. En effet les seules différences entre les Novy purline et les purline pro c'est : le bandeau led + module de réception contact sec mis en avant.
Au prix catalogue, il n'ya que 200€ départ entre les 2, mais sur le web, il y'a bien 1000€ d'écart !
Pour ceux que cela intéresse, ci dessous le schéma de câblage et la liste des hottes Novy compatibles avec système.
Je vous mets aussi la doc entière, doc qu'on trouve pas sur le site de Novy.
Novy_990033_Cable_fenetre_Installation.pdf (Taille : 870,53 Ko / Téléchargements : 15)
Mini Pureline
Pureline- 6810
- 6811
- 6820
- 6821
- 6830
- 6831
- 6832
- 6835
- 6836
- 6840
- 6841
- 6842
- 6845
- 6846
Flatline- 7600
- 7602
- 7605
- 7610
- 7615
- 7640
- 7642
- 7645
- 7650
- 7655
- 7660
- 7665
Messages : 70
Sujets : 11
Inscription : Jun 2024
(18/02/2023, 09:59:32)Ives a écrit : Bonjour
J'ai également une Novy pure'line 850 avec moteurs déportés et une plaque à induction Novy (j'ai intégré la commande de l'éclairage au KNX) ; ma maison étant également RT2012 j'ai opté pour le modèle à recyclage mais ta solution est possible car, pour la version recyclage, le bruit est acceptable en vitesse 1 (celle utilisée le plus couramment) et tolérable en vitesse 2 !
![[Image: rgf5.jpg]](https://zupimages.net/up/16/24/rgf5.jpg)
Ce sujet m'intéresse ! J'aimerais savoir quels ont été vos choix finaux et pour quelle raison. Je trouve l'intégration d'Ives très réussie et j'envisage de partir sur quelque chose similaire.
Ce qui m'intéresserait notamment est
- Intégrer la commande d'éclairage (comment t'y es-tu pris ? Tu as démonté la hotte ?)
- Coordonner la commande de la hotte et la commande de boost de la VMC du modèle que l'électricien va installé (à ce propos dans une hotte intégrée au plafond comme celle-ci, où le panneau de commande se trouve-t-il ?)
- Eventuellement mais je ne sais pas si c'est possible ? Activer la hotte automatiquement si le détecteur de fumée commence à en détecter avant qu'il ne soit au seuil de déclenchement de l'alarme
Messages : 3,632
Sujets : 46
Inscription : Mar 2013
(04/10/2024, 14:20:50)Hadrieng a écrit : Ce qui m'intéresserait notamment est
- Intégrer la commande d'éclairage (comment t'y es-tu pris ? Tu as démonté la hotte ?)
- Coordonner la commande de la hotte et la commande de boost de la VMC du modèle que l'électricien va installé (à ce propos dans une hotte intégrée au plafond comme celle-ci, où le panneau de commande se trouve-t-il ?)
- Eventuellement mais je ne sais pas si c'est possible ? Activer la hotte automatiquement si le détecteur de fumée commence à en détecter avant qu'il ne soit au seuil de déclenchement de l'alarme
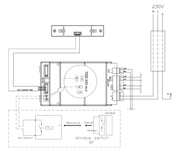
La hotte n'a pas d'éclairage intégré ; il y a des touches sensitives sur la plaque à induction (NOVY 1778) pour sélectionner la vitesse d'extraction et piloter une sortie "éclairage" qui délivre 230 V comme le montre le schéma ci-dessous :
J'ai connecté cette sortie à une entrée binaire KNX ( Theben BMG6) qui accepte des tensions jusqu'à 240 V (certains modules d'entrées n'acceptent que les contacts secs) et il est possible ainsi de commander l'éclairage depuis la plaque de cuisson, depuis un bouton KNX et également via la commande vocale.
Coordonner les commandes de la hotte et du boost de VMC (la bouche d'extraction de la VMC fonctionne en permanence en vitesse "normale") n'a aucune utilité car le débit de la VMC est ridicule comparé au débit de la hotte (620 à 1700 m3/h).
Activer la hotte via le détecteur de fumée c'est toujours possible mais quel est l'intérêt ?
Messages : 1,253
Sujets : 34
Inscription : May 2017
05/10/2024, 10:13:45
(Modification du message : 05/10/2024, 10:16:04 par richardpub.)
Pour ma part j'ai une hotte Miele (qui ne se fait plus d'ailleurs) avec un moteur d'extraction vers l'extérieur.
Elle se commande avec une télécommande. Il faudrait que je trouve son plan électrique. Elle est très efficace, mais il faut penser à la mettre en route qui si on laisse bruler un plat l'alarme incendie se déclenche.
[img] ![[Image: 24100511123225602918473944.jpg]](https://nsm09.casimages.com/img/2024/10/05//24100511123225602918473944.jpg) [/img]
Messages : 3,632
Sujets : 46
Inscription : Mar 2013
(05/10/2024, 10:13:45)richardpub a écrit : Pour ma part j'ai une hotte Miele (qui ne se fait plus d'ailleurs) avec un moteur d'extraction vers l'extérieur.
Elle se commande avec une télécommande. Il faudrait que je trouve son plan électrique. Elle est très efficace, mais il faut penser à la mettre en route qui si on laisse bruler un plat l'alarme incendie se déclenche. Avec ce type de hotte plafond dont le débit est très important et une maison RT 2012 ou RE 2020, la mise en dépression de la pièce est très rapide et à ce moment la hotte n'est plus efficace.
J'avais dans ma précédente une hotte Gaggeneau à télécommande et je n'appréciais pas d'avoir à chercher la télécommande dans le tiroir en dessous la plaque de cuisson (dans le meilleur des cas !)
Messages : 70
Sujets : 11
Inscription : Jun 2024
(04/10/2024, 15:01:53)Ives a écrit : J'ai connecté cette sortie à une entrée binaire KNX (Theben BMG6) qui accepte des tensions jusqu'à 240 V (certains modules d'entrées n'acceptent que les contacts secs) et il est possible ainsi de commander l'éclairage depuis la plaque de cuisson, depuis un bouton KNX et également via la commande vocale.
Coordonner les commandes de la hotte et du boost de VMC (la bouche d'extraction de la VMC fonctionne en permanence en vitesse "normale") n'a aucune utilité car le débit de la VMC est ridicule comparé au débit de la hotte (620 à 1700 m3/h).
Activer la hotte via le détecteur de fumée c'est toujours possible mais quel est l'intérêt ?
Très intéressant, merci !
Ok pour la VMC mais du coup l'utilité de ce bouton poussoir en lui-même est discutable... L'électricien a prévu de nous installer le BP dans la cuisine. De deux choses l'une :
- Soit c'est une pratique courante pour pouvoir booster la VMC quand on cuisine mais dans ce cas, à priori, le besoin de boost se fait sentir au moment où on aurait tendance à allumer la hotte me semble-t-il ?
- Soit le boost n'est jamais utilisé car finalement on utilise la hotte et le principe même du BP est discutable
Messages : 3,632
Sujets : 46
Inscription : Mar 2013
(14/10/2024, 08:40:24)Hadrieng a écrit : Ok pour la VMC mais du coup l'utilité de ce bouton poussoir en lui-même est discutable... L'électricien a prévu de nous installer le BP dans la cuisine. De deux choses l'une :
- Soit c'est une pratique courante pour pouvoir booster la VMC quand on cuisine mais dans ce cas, à priori, le besoin de boost se fait sentir au moment où on aurait tendance à allumer la hotte me semble-t-il ?
- Soit le boost n'est jamais utilisé car finalement on utilise la hotte et le principe même du BP est discutable C'est une pratique courante mais pour des hottes plus "poussives" (le plus généralement 300 m3/h maxi) mais qui me semble inutile pour ce type de hotte à très haut débit (1700 m3/h maxi pour la mienne)
Ce qui me semble important c'est de mettre en marche l'extraction quelques minutes avant de cuisiner afin de créer un flux constant pour capturer rapidement les odeurs et la fumée dès le début de la cuisson.
Messages : 1,253
Sujets : 34
Inscription : May 2017
(05/10/2024, 10:26:41)Ives a écrit : (05/10/2024, 10:13:45)richardpub a écrit : Pour ma part j'ai une hotte Miele (qui ne se fait plus d'ailleurs) avec un moteur d'extraction vers l'extérieur.
Elle se commande avec une télécommande. Il faudrait que je trouve son plan électrique. Elle est très efficace, mais il faut penser à la mettre en route qui si on laisse bruler un plat l'alarme incendie se déclenche. Avec ce type de hotte plafond dont le débit est très important et une maison RT 2012 ou RE 2020, la mise en dépression de la pièce est très rapide et à ce moment la hotte n'est plus efficace.
J'avais dans ma précédente une hotte Gaggeneau à télécommande et je n'appréciais pas d'avoir à chercher la télécommande dans le tiroir en dessous la plaque de cuisson (dans le meilleur des cas !)
Pas de problème d'efficacité, mais je pense que c'est une anomalie de la maison avec une cheminée à foyer ouvert (avec possibilité de la fermer, mais en fait elle est quasiment tout le temps ouverte), et donc l'air qui rentre dans la pièce n'est pas limitée.
Messages : 1,253
Sujets : 34
Inscription : May 2017
D'autant plus que le détecteur de fumée est très proche de la zone de cuisson, et qu'il se déclenche si on a oublié de déclencher la hotte avant.
Messages : 3,632
Sujets : 46
Inscription : Mar 2013
(14/10/2024, 10:06:27)richardpub a écrit : Pas de problème d'efficacité, mais je pense que c'est une anomalie de la maison avec une cheminée à foyer ouvert (avec possibilité de la fermer, mais en fait elle est quasiment tout le temps ouverte), et donc l'air qui rentre dans la pièce n'est pas limitée.
La cheminée ouverte n'est pas autorisée dans une maison RT2012 ou RE2020. J'ai installé un poêle à bois étanche qui, par ailleurs, a un rendement de 83 % comparer aux 10 à 15 % de celui d'une cheminée ouverte.
Messages : 1,253
Sujets : 34
Inscription : May 2017
Je sais mais la maison a été construite juste avant et du coup on s'est approché de la norme RT2012 , mais on a gardé certaines de nos envies.
|